Direkt zum Inhalt

Geretsried

Wohnheim und Mensa

Drei Architekten

Neubau und Erweiterung der Feuerwehrschule in Geretsried.

Realisierungswettbewerb 
4. Preis

Auslober
Staatliches Bauamt Weilheim

2018

Wohnheim und Mensa Geretsried

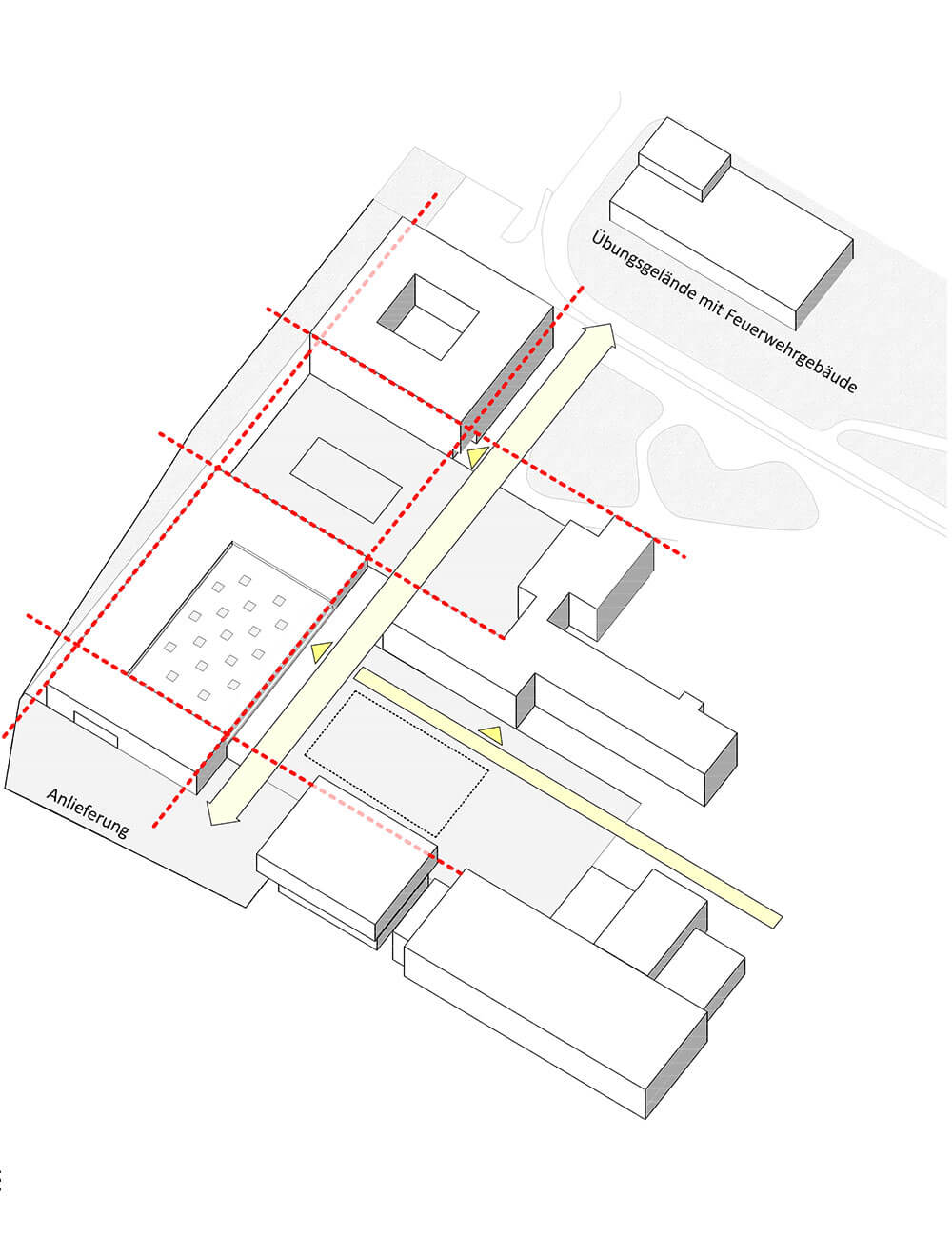
Städtebauliche Integration

 

Das zweigeschossige Wirtschaftsgebäude mit Mensa und Cafeteria bildet zusammen mit dem bestehenden südlichen Unterrichtsgebäude und dem vorhandenen Wohngebäude einen markanten zentralen Bereich für die gesamte Feuerwehrschule. Das nördlich dazu platzierte, neue Unterkunftsgebäude nimmt exakt die seitlichen Fluchten des Mensabaus auf und bildet im Freiraum zur Mensa hin einen eher intern genutzten grünen Bereich.

Wohnheim und Mensa Geretsried
Schnitt A
Wohnheim und Mensa Geretsried
Ansicht Nord-Ost

Weitere
Wettbewerbe

Studierendenwohnheim Hof
Gemeindezentrum Wendlingen
Studentenwohnheim Stuttgart-Vaihingen
Wohnen und Pflegen Konstanz