Direkt zum Inhalt

Heidenheim an der Brenz

Brenzpark Quartier

Drei Architekten

Neubau Brenzpark Quartiers in Heidenheim an der Brenz

Mehrfachbeauftragung 
1. Rang

Auslober
Wohnbau Brenzpark GmbH 

2022

Brenzpark Quartier Heidenheim

Urbanes Quartier

 

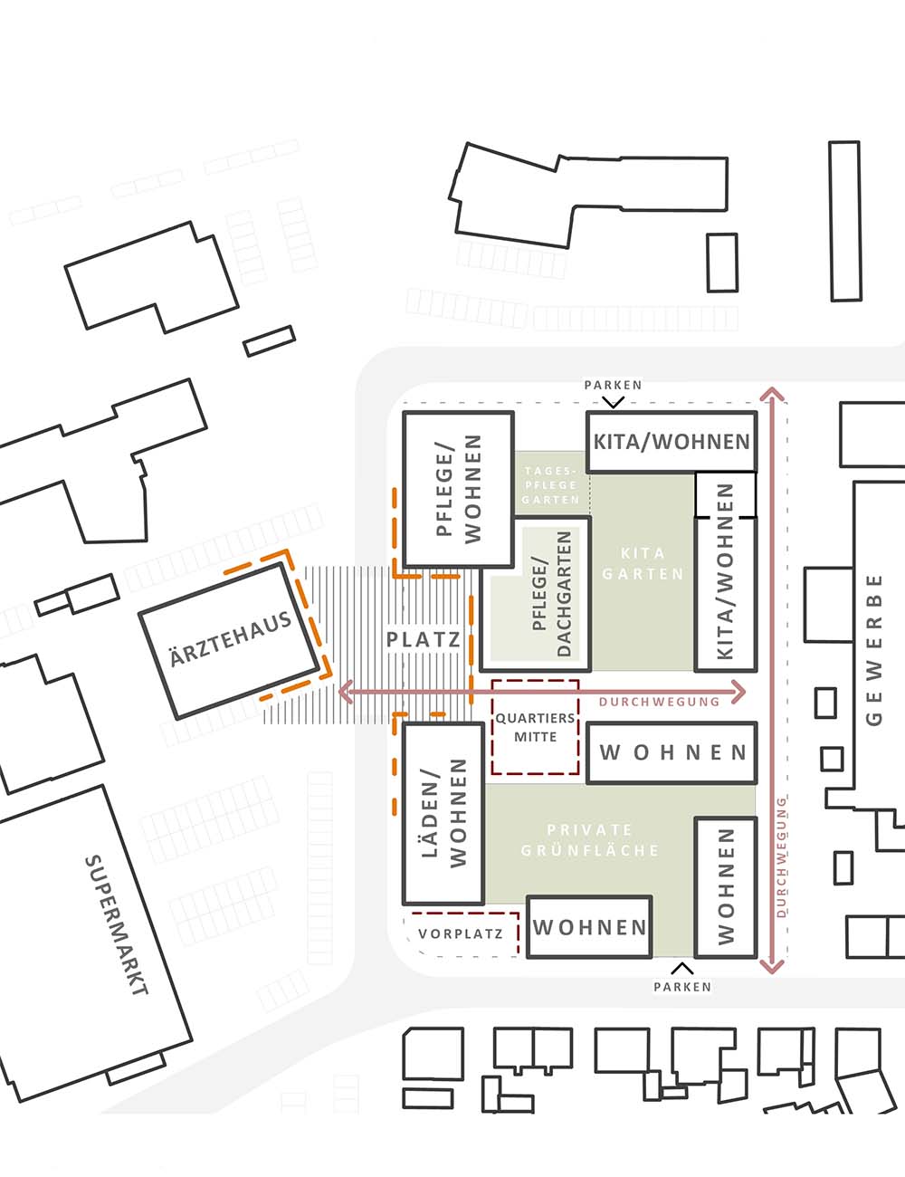
Gegenstand der Mehrfachbeauftragung war die Erarbeitung eines Bebauungskonzeptes für das Brenzpark Quartier gemäß den Vorgaben der Rahmenplanung. Im Areal sollten unterschiedliche Wohnangebote, eine Kindertagesstätte, ein Quartierstreff, ein Pflegeheim sowie nicht störende Gewerbeformen in einer verträglichen baulichen und funktionalen Dichte entstehen.

Der Entwurf folgt hinsichtlich der Bildung der stadträumlichen Kanten dem Vorschlag aus dem Rahmenplan — mit einer Ausnahme: Der zurückspringende Pflegeheim-Baustein reagiert auf das gegenüberliegende Ärztehaus und bildet einen Platz. Auf dessen Dach entsteht ein geschützter, grüner Garten für die Heimbewohner mit Blicken hinunter auf das Treiben in den umliegenden Innenhöfen, der KiTa-Freifläche und der gemeinsamen Mitte. Der unmittelbar an die KiTa angrenzende Quartierstreff lässt sich tagsüber als Bewegungsraum für die Kinder nutzen - Im Gegenzug steht die KiTa-Terrasse am Abend für die Quartiersbewohner zum gemeinsamen Abendessen und Austausch zur Verfügung. Der Quartierstreff verfügt über eine eigene Küche und WCs und wird direkt von der gemeinsamen Mitte über eine eigene Freitreppe erschlossen.

Brenzpark Quartier Heidenheim

Auszug aus dem Preisgerichtsprotokoll

„Durch eine leichte Abweichung vom Rahmenplan wird gegenüber des vorhandenen Ärztehauses ein zusätzlicher funktionaler und ausgestalteter Vorplatz geschaffen, dessen Qualität über die Mittelachse ins Quartier hineingezogen wird. Die Abstufung der Gebäudehöhe des Pflegeheims schafft an dieser Stelle eine großzügige Dachterrasse als zusätzlichen Freiraum. Beide Elemente werden vom Gremium begrüßt.... Besonders gelungen ist zudem die durchdachte Funktionszuordnung der Freiflächen in Abhängigkeit zur angrenzenden Baukörpernutzung. Auch der Vorplatz ist qualitätsvoll mit Öffnung zum Bäcker und zum Quartiersplatz gestaltet. Durch halb in den Baugrund eingelassene Parkdecks erhalten die Wohngeschosse durch die Ausbildung einer Hochparterre geschützte und private Innenräume. Die homogene in sich ruhende Fassadengestaltung – einheitlich für das gesamte Quartier – wirkt solide.... Besonders die gut gelösten funktionalen und inhaltlichen Anforderungen in einem sehr hohen Detaillierungsgrad überzeugen. Die einander zugewandte Anordnung der Kita und des Pflegeheims ist sehr gut vorstellbar und wird positiv bewertet im aufgezeigten Zusammenspiel. Zudem überzeugen die vorgesehenen Grundrisse mit Ausbildung von Penthousewohnungen im obersten Geschoss mit einem hohen Anteil an Süd-West-Ausrichtung auch im südlichen Baufeld. Das Pflegeheim ist überwiegend Ost-West ausgerichtet, was vom Gremium begrüßt wird.... Der Entwurf überzeugt besonders mit seiner homogenen Ausgestaltung, welche sich wie selbstverständlich in die Umgebung einfügt und qualitätsvolle Freiräume schafft.“

Brenzpark Quartier Heidenheim

Weitere
Wettbewerbe

Wohnheim und Mensa Geretsried
Landratsamt Lörrach
Sozialdiakonisches Zentrum
Hotel Sachs Neustadt an der Weinstraße
Ortsmitte Oberharmersbach