Direkt zum Inhalt

Böblingen

Zentrum für selbstbestimmte Teilnahme am Leben

Drei Architekten

Neubau eines Kompetenzzentrums für Menschen mit Behinderung und deren Angehörige für die Lebenshilfe Böblingen gGmbH

Planerauswahlverfahren
1. Preis

Auslober
Lebenshilfe Böblingen gGmbH

2024

WB ZTL Böblingen
WB ZTL Böblingen

„All-in-One“

 

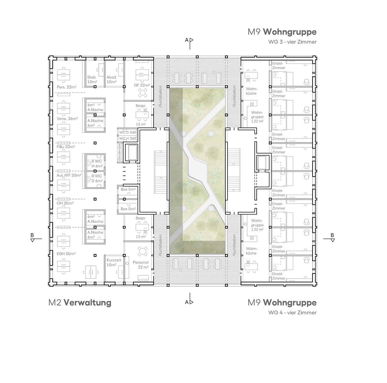
Die Lebenshilfe Böblingen gGmbH plant ein Kompetenzzentrum für Menschen mit Behinderung und deren Angehörige. Die Herausforderung besteht darin, auf einem knappen Grundstück am Rand des Stadtteils Flugfeld Böblingen einen bunten Nutzungsmix aus diversen Assistenz- und Therapiebereichen, Wohngruppenangeboten, einer inklusiven KiTa mit Außenbereich, einem Verwaltungstrakt und einem Quartierscafé zu organisieren. Unsere Antwort darauf ist ein kompakter 5-geschossiger Baukörper mit gestapelten Nutzungen: in den unteren zwei Geschossen die öffentlicheren Bereiche, und in den oberen drei Geschossen mit eingeschnittenem Freibereich die ruhigeren Nutzungen. Bis auf das Untergeschoss und die Erschließungskerne aus Stahlbeton wird die Konstruktion als Holzbau vorgeschlagen.
 

WB ZTL Böblingen

 

 

1. und

2. und

3. und

4. OG

WB ZTL Böblingen
WB ZTL Böblingen
WB ZTL Böblingen
WB ZTL Böblingen
WB ZTL Böblingen

Auszug aus dem Preisgerichtsprotokoll

„Die Autoren entscheiden sich für die kompakte Kubatur eines einzelnen Baukörpers und eine entschiedene, nicht unbedingt erwartbare Setzung parallel zur Richard-Kopp-Straße. Diese signifikante Position erzeugt überraschende Bezüge/Freiräume vor allem aber Abstand zur Calwer-Straße. Dadurch werden alle nicht-öffentlichen Nutzungen von den öffentlichen Räumen/Straßenkanten abgerückt – für die Nutzer entsteht größtmögliche Privatheit. Unterschiedliche Nutzungen erhalten eigene Zugänge … hier entsteht eine für jeden Besucher erkennbare Adresse durch einen deutlichen Rücksprung der EG-Fassade mit einem gut dimensionierten Quartierscafé. Was die Kubatur verspricht, hält das Grundriss-Layout in allen Geschossen. Im EG verbindet eine schlanke Passage Foyer und Garten, im Übrigen sind EG und 1.OG kompakt mit minimierten Verkehrsflächen strukturiert. Die Flächenzuschnitte aller weiteren Obergeschosse wirken angemessen, die Modulzuordnung entspricht den Programmanforderungen. Dabei achten die Autoren auf die Zuordnung der sensiblen Wohngruppen zum ruhigen Auguste-Piccard-Weg und ordnen Verwaltung und andere Dienste konsequent entlang der Calwer-Straße. Die Wohngruppen werden auf diese Weise allein durch organisatorische Maßnahmen ohne weiteren technischen Aufwand vor den zu erwartenden Verkehrsemissionen abgeschottet. Auf private Freiräume, Loggien oder Balkone wird konsequent verzichtet. Stattdessen bietet der Entwurf große Stadt-Loggien und Garten-Loggien auf allen Ebenen an, die der Hausgemeinschaft insgesamt zur Verfügung stehen. Sie sind Begegnungsorte für diese Nachbarschaft mit Blick in die Umgebung oder in den eigenen Innenhof über dem 1.OG... Das Tragsystem basiert auf einem rationalen, Holzbaukonformen Stützenskelett mit Holzunterzügen und Holz-Beton-Verbunddecken. Die Treppenhäuser sind an zentraler Stelle in das Skelett eingefügt, bieten damit eine ideale Aussteifung des Gesamtsystems und erfüllen so auf selbstverständliche Weise die Anforderungen an die Rettungswege... Die Autoren zeigen einen souveränen Umgang mit ganzheitlichem Ansatz aus städtebaulicher Setzung, Programm und Organisation, Tragwerk und Konstruktion. Diese Professionalität verspricht gute Entwicklungsoptionen.“


Weitere
Wettbewerbe

Ersatzneubau Kita Hohe Straße Leipzig
Masterplan Institut der Feuerwehr Münster
Studierendenwohnheim Neu-Ulm
Neukonzeption Eberhardskirche Tübingen