Direkt zum Inhalt

Sandhausen

Sport- und Kulturzentrum

asty studio

Sanierung und Erweiterung der alten Turn- und Festhalle zu einem modernen Sport- und Kulturzentrum 

Realisierungswettbewerb
1. Preis

Auslober
Gemeinde Sandhausen

2023

WB Sport- und Kulturzentrum Sandhausen

Aus „Alt mach Neu“ 
 

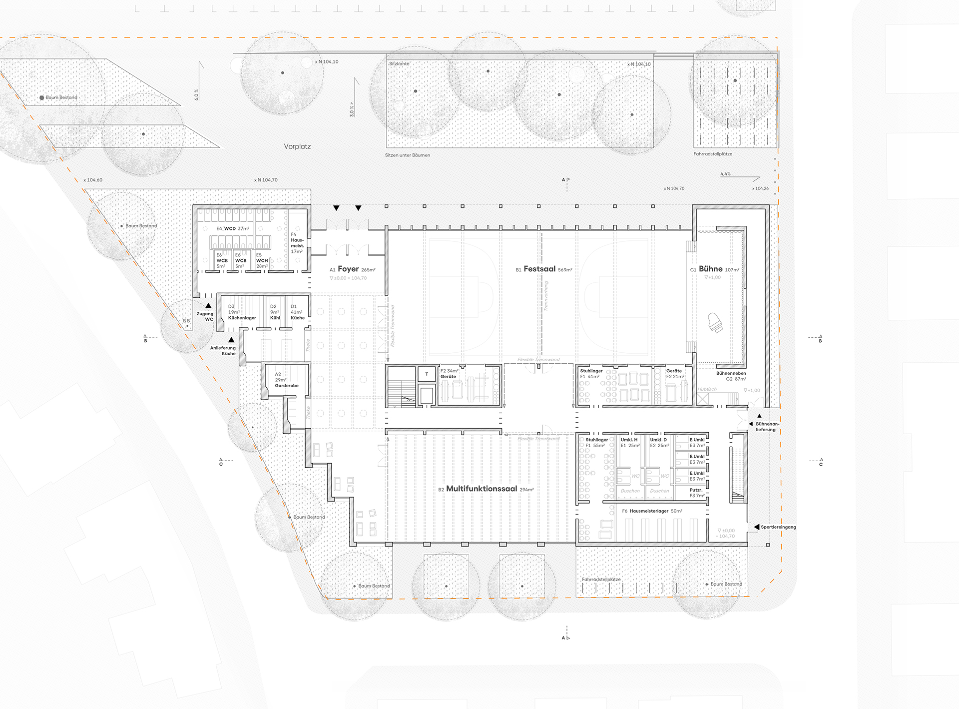
Aufgabe war es die bestehende Sport- und Festhalle zu sanieren und zu erweitern, sowie den vorhandenen Festplatz neu zu gestalten. Die Qualität des Ortes liegt an dem neu zu gestaltenden Festplatz. Die direkte Verknüpfung des Bestandsaals mit dem Festplatz gelingt durch den Rückbau der bestehenden Nebenraumspange im Norden - Hiermit ist es auch möglich, die Ausrichtung des Festsaals umzudrehen und diesen zum Festplatz hin zu öffnen. 

 

WB Sport- und Kulturzentrum Sandhausen

Durch diesen behutsamen Teilabriss im Norden des Grundstücks und einer Erweiterung und Aufstockung im südlichen Teil konnte mit relativ wenigen Eingriffen in den Bestand ein neuer zentraler Stadtbaustein für Sandhausen entstehen. Die bestehenden Erdgeschosswände in Massivbauweise werden durch Mauerwerk ergänzt und die Aufstockung komplett im Holzbau errichtet. Ein verantwortungsvoller Umgang mit baulichen Ressourcen soll damit bereits in der Wettbewerbsphase angedacht werden.

Konzeption

WB Sport- und Kulturzentrum Sandhausen
Erdgeschoss
WB Sport- und Kulturzentrum Sandhausen
Obergeschoss
WB Sport- und Kulturzentrum Sandhausen
Dachaufsicht
WB Sport- und Kulturzentrum Sandhausen
WB Sport- und Kulturzentrum Sandhausen

Auszug aus dem Preisgerichtsprotokoll

„Die städtebauliche Setzung des Baukörpers auf dem Grundstück ist in jeder Hinsicht überzeugend... Durch die neuen Raumprofile entstehen dorftypische Gassen, die mit Baumreihen einen attraktiven Charakter erhalten... Durch den Rückbau der Nebenräume im Norden bekommt der bestehende Festsaal eine neue Bedeutung für den öffentlichen Raum. Durch die Kombination aus der vorgelagerten Überdachung, dem einladenden Eingang und der raumgreifenden Verglasung des Festsaals gelingt eine unverwechselbare Adressbildung und Ausstrahlung des Gebäudes zum Platz hin. Der Erhalt und die Erweiterung des abgestaffelten Bauteils im Westen werden sehr positiv bewertet. Dadurch bleibt das Gebäude, auch nach der Sanierung fest im Gedächtnis der Bürger verankert. Die Architektur, die Proportionen des Gebäudes, sowie die Wahl der Materialien sichern dem Bauwerk eine dauerhafte Schönheit… Das ergänzende zurückspringende 1.OG ist als leichte Holzkonstruktion mit Wänden in Stapelbauweise und einer Brettsperrholzdecke vorgesehen. Aufgrund der gewählten Baumaterialien kann das Obergeschoss nachhaltig und sehr wirtschaftlich ausgeführt werden... Das architektonisch-konstruktive Konzept schafft gute Voraussetzungen für die Erreichung der ambitionierten Klimaschutz-Ziele…“

WB Sport- und Kulturzentrum Sandhausen
asty studio

Weitere
Wettbewerbe

Rathaus Erbach
Zentrum Rosengarten
Dreifeldhalle Schömberg
Kirbachschule Hohenhaslach