Direkt zum Inhalt

Feuerbach

Schulcampus

Drei Architekten

Sanierung und Erweiterung Schulcampus in Feuerbach.

Planungswettbewerb 
Anerkennung

Auslober
Landeshauptstadt Stuttgart

Freianlagen
realgrün Landschaftsarchitekten

2017

Schulcampus Feuerbach
Ansicht Ost

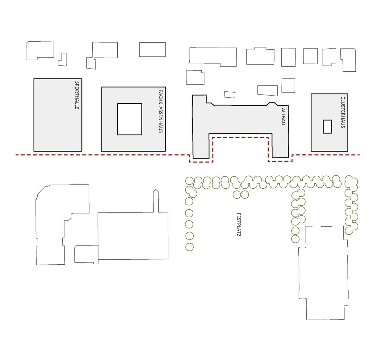
Ensemble von Alt und Neu

 

Ziel des Entwurfs ist „ein“ Schulensemble zu entwickeln. Die Neubauten sollen zusammen mit dem Altbau des Leibniz Gymnasiums ganz selbstverständlich ein gemeinsames Schulensemble bilden, das „Neue Gymnasium Leibniz“. Der Altbau bildet das Herz des Schulcampus und wird damit seiner Stellung als bedeutendes und denkmalgeschütztes Gebäude gerecht. Die Neubauten rahmen den Bestand, nehmen sich in der Höhe zurück und geben dem Altbau durch die leichte Verschiebung nach Westen Gewicht. Die Klagenfurter Straße wird zum shared space und bildet damit einen erweiterten Schulhofbereich. Es entsteht ein starkes und identitätsstiftendes Ensemble.

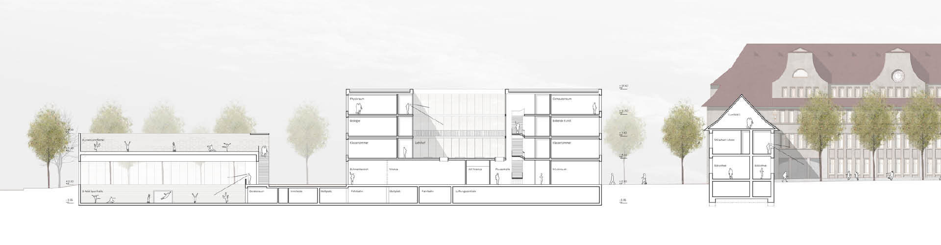
Schulcampus Feuerbach
Schnitt Nord-Süd

Auszug aus dem Preisgerichtsprotokoll

„Mit drei einzelnen Baukörpern entwickeln die Verfasser für das Gebiet angemessene Grundproportionen. Auch die Höhenentwicklung von Cluster- und Fachklassenhaus gegenüber dem Altbau ist richtig gewählt... Eine abschnittsweise Umsetzung ohne Interimsbauwerk ist möglich. Die ruhigen, einfach gegliederten Klinkerfassaden werden kontrovers diskutiert. Der Zugang zum Fachklassenhaus wird durch den Gebäuderücksprung klar definiert... Die vorgeschlagenen Cluster sind in beiden Baukörpern gut vorstellbar. Auch die Verteilung der naturwissenschaftlichen Fachklassen ist gut gewählt... Die Eingriffe in den Altbau beschränken sich auf ergänzende Zwischenwände, welche den Flur mit seiner Ausstattung respektieren... Die Außensportflächen auf der Sporthalle sind ein sinnvolles Angebot,... Der Entwurf liegt im durchschnittlichen wirtschaftlichen Bereich... Die vorgegebenen Parameter bei der GRZ und den Gebäudehöhen sind eingehalten Insgesamt stellt die Arbeit einen ruhigen und v.a. auch innenräumlich qualitätvollen Beitrag dar.“

4 Bausteine

Schulcampus Feuerbach
Freiräume
Schulcampus Feuerbach
Gebäudeensemble
Schulcampus Feuerbach
Baumbilanz

Weitere
Wettbewerbe

Gesamtschule Bad Honnef
Ersatzneubau Kita Hohe Straße Leipzig
Neukonzeption Eberhardskirche Tübingen
Kirbachschule Hohenhaslach
Achtalschule Baienfurt