Direkt zum Inhalt

Durlach

Schloss-Schule

Drei Architekten

Sanierung und Erweiterung der Schloss-Schule in Durlach.

Realisierungswettbewerb 
2. Preis

Auslober
Stadt Karlsruhe

2017

Schule Durlach
Ansicht West

Städtebauliche Integration

 

Der Neubau ergänzt den Bestandsbau und bildet mit ihm zusammen eine neue raumbildende Einheit. Durch den schlanken Baukörper entsteht eine maximal geschützte Schulhoffläche, die zusammen mit den Raumkanten des Schlosses einen prägnanten Innenraum schaffen. Über den verglasten Eingangsbereich gibt es eine direkte Sichtbeziehung zum Schulhof und auf das Schloss. 

Grundrisse

Schule Durlach
Grundriss Erdgeschoss
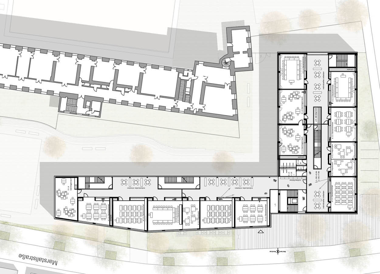
Schule Durlach
Grundriss 1. Obergeschoss

Auszug aus dem Preisgerichtsprotokoll

„Die einbündige Erweiterung des Bestandsgebäudes folgt dem Straßenverlauf der Marstallstraße und fügt sich durch die leicht abgeknickte Figur in den beiden oberen Geschossen selbstverständlich in die Umgebung ein. Sowohl der Abstand zur Karlsburg als auch zum Straßenraum ist gut gewählt, da zum einen eine ausreichend belichtete Freifläche für den Schulhof entsteht und zum anderen die straßenbegleitenden Bäume vollständig erhalten bleiben. Die überdachte Freifläche bildet einen gelungenen Übergang zu den Freiflächen im Norden. Die Anordnungen der Klassenräume mit dazugehörigen individuellen Arbeitszonen sind optimal gelöst. Es entstehen räumlich differenzierte und ansprechende Räume, die hell und gut nutzbar sind. Das energetische Konzept ist nachvollziehbar und entspricht den Anforderungen der Ausloberin voll umfänglich. Über passive und aktive Elemente wird die Lüftung im Heizfall aber auch im Sommer sehr gut gelöst... Die Proportionen und Materialität der Fassaden sind gut gewählt. Sie verleihen dem Schulgebäude einen eigenständigen Charakter und korrespondieren mit der Stein- und Putzfassade der Karlsburg...“ 


Weitere
Wettbewerbe

Achtalschule Baienfurt
Ganztagesgrundschule Rheinstetten-Mörsch
Erweiterung Schickhardtschule Stuttgart
Kreuzschule Regensburg
Staudinger Gesamtschule Freiburg