Direkt zum Inhalt

Stuttgart-Bad Cannstatt

Betreutes Wohnen

asty studio

Neubau für Betreutes Wohnen neben dem bestehenden Wohngebäude „Stadtmühle“ des Evangelischen Vereins

Mehrfachbeauftragung
1. Rang

Auslober
Evangelischer Verein - Verein für diakonische Arbeit e.V

2023

Betreutes Wohnen Bad-Cannstatt
Betreutes Wohnen Bad-Cannstatt

Wohnen am Neckar

 

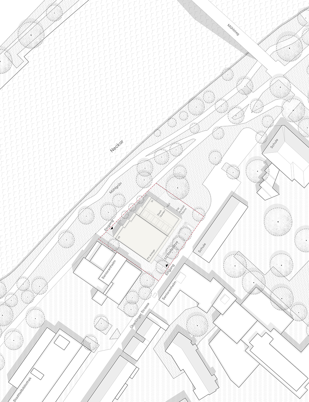
Der Evangelische Verein - Verein für diakonische Arbeit e.V. ist gemeinnütziger Träger für Alten- und Pflegeheime sowie betreutes Wohnen. In Bad Cannstatt möchte dieser dem gestiegenem Bedarf nach seniorengerechtem Wohnraum nachkommen. Neben einem bereits bestehenden altengerechtem Wohngebäude des Evangelischen Vereins („Stadtmühle“) soll ein Neubau mit Betreutem Wohnen entstehen, der auch als Ort der Begegnung für den Stadtbezirk einen Mehrwert beisteuern soll.

 

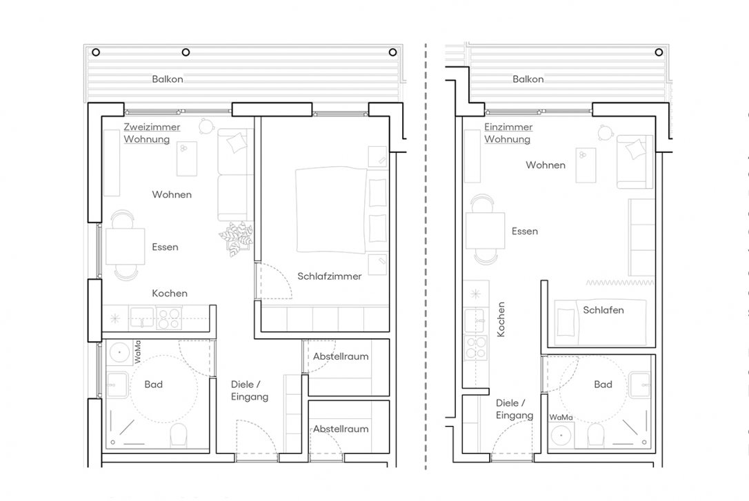
Unser Entwurf konnte bei der anonymisierten Mehrfachbeauftragung mit sechs Teilnehmern die Jury überzeugen. Auf dem reizvollen Grundstück direkt am Neckar gelegen sollen nun auf einem Sockelgeschoss aus Stahlbeton 6 Geschosse mit 51 betreuten Wohnungen in Holzbau errichtet werden. Als besonderes Highlight findet sich auf dem Dach ein Bewohnergarten mit traumhaftem Ausblick ins Neckartal.

Betreutes Wohnen Bad-Cannstatt
Betreutes Wohnen Bad-Cannstatt
Betreutes Wohnen Bad-Cannstatt

Auszug aus dem Preisgerichtsprotokoll

„Die Verfasser beschreiben ihren Entwurf als kompaktes und schnörkelloses Gebäude, das sich in den städtebaulichen Kontext einfügt. Das vorgeschlagene Haus für betreutes Wohnen leistet aber viel mehr. Gliederung und Staffelung der Baumassen nehmen geschickt Bezug auf das benachbarte hohe Mühlengebäude... Die zurückgestaffelte Fassade entlang des Neckarufers nimmt den Grundstücksverlauf auf, schafft aber vor allem eine spannende Rhythmisierung, die auch im Inneren erlebbar wird. Das Äußere korrespondiert mit dem Inneren. Ebenso stimmig werden die Eingänge, vertikale Erschließungen und Aufenthaltsbereiche platziert. Zur Überkinger Straße ist das Erdgeschoss auf die Flucht des nebenstehenden Mühlengebäudes zurückgesetzt. Es entsteht ein einfacher, aber sehr angemessener Vorbereich, der selbstverständlich zum Eingang mit seinem zweigeschossigen und gut proportionierten Luftraum mit kleiner Galerie leitet... Die Ein- und Zweizimmerwohnungen sind intelligent und wirtschaftlich angeordnet. Die Grundrisse mit den kompakten Sanitär- und Küchenbereichen ermöglichen eine große Nutzungsflexibilität für alle Bedürfnisse des Wohnens im Alter. Die Erschließungsbereiche auf den Etagen sind mehr als Flure. Durch die räumliche Staffelung entstehen kleine, informelle Aufenthalts- und Begegnungszonen für die Bewohner... Die Dachterrasse ist für alle Bewohnerinnen und Bewohner barrierefrei zugänglich. Sie orientiert sich großzügig in drei Richtungen und öffnet den Blick auf den Neckarbogen... Der Entwurf überzeugt durch seine ausgewogene Komposition, die stimmige innere Organisation, die räumlichen Qualitäten und seine einfache, aber selbstbewusste Erscheinung im Stadtraum.“

Betreutes Wohnen Bad-Cannstatt
Betreutes Wohnen Bad-Cannstatt

Weitere
Wettbewerbe

Weberei Lörrach
Hotel Sachs Neustadt an der Weinstraße
Studierendenwohnheim Neu-Ulm
LEO 11 Ditzingen
Erweiterung Schickhardtschule Stuttgart