Direkt zum Inhalt

Ammerbuch

Rettungszentrum Altingen

Neubau Rettungszentrum Altingen für die Freiwillige Feuerwehr und das Deutsche Rote Kreuz

Bauherr
Gemeinde Ammerbuch

Status
In Planung und Bau

Rettungszentrum Ammerbuch
Rettungszentrum Ammerbuch

Einmal Holz

 

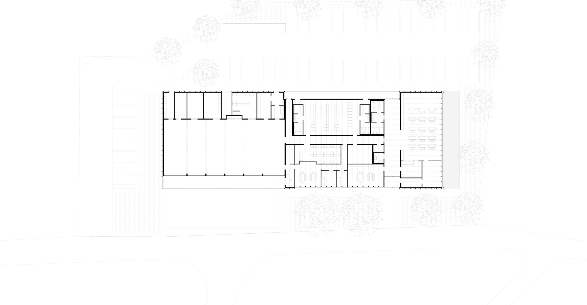
Das Rettungszentrum in Altingen, gelegen zwischen Ammertal-Bahn und einem Wohngebiet, markiert den südöstlichen Ausgang des Ortes. Ausgelegt ist das Gebäude für die Freiwillige Feuerwehr sowie das Deutsche Rote Kreuz. Die Funktion des Gebäudes ist durch die großzügig verglasten Tore sichtbar, die zur Römerstraße hin ausgerichtet sind. 

Der eingeschossige Holzbau ist in Kalt- und Warmbereich unterteilt. Im nordwestlichen Teil des Gebäudes befindet sich der Kaltbereich mit Fahrzeughalle und DRK-Räumen. Der Warmbereich gliedert sich in drei Zonen: Alarmflur, Eingangsachse mit Haupt- und Nebeneingang sowie der Saalnutzung. 

Rettungszentrum Ammerbuch

Der Holzbau, geplant auf einer Stahlbeton-Flachgründung, zeichnet sich durch einen hohen Vorfertigungsgrad aus. Die Konstruktion bleibt innen sichtbar, um die Materialität des Holzes zu betonen. Außen wird dies durch eine vertikale Holzschalung mit Lisenen fortgeführt, welche der Länge des Gebäudes entgegenwirkt.

Rettungszentrum Ammerbuch

Raum für Projektdaten

Rettungszentrum

VgV-Verfahren 2023
1 - 9
ab 05/2023
in Planung
Ammerbuch-Altingen
8.150 cbm
1.750 qm
Gemeinde Ammerbuch

Team

Partner, Projektleitung
Mitarbeit

Fachplaner

Objektüberwachung        
SIIN GmbH, Stuttgart

Freianlagenplanung
Herrmann und Mang Ingenieure

Tragwerksplanung
Schneck-Schaal-Braun

Bauphysik
Rath + Fritz

Brandschutz
Dipl.-Ing. Ralf Kludt

Elektroplanung
Wilfried Ehreiser

HLS-Planung
Rath + Fritz

Baugrundgutachten
HPC AG

DGNB-Zertifizierung
Michael Wengert – Energiebuero

Fachplanung Lärmschutz
IB Dröscher

Vermessung
IB Martin Schneck

PV-Anlage
Stadtwerke Tübingen

Raum für
Einblicke

Rettungszentrum Altingen
Rettungszentrum Altingen
Rettungszentrum Altingen
Rettungszentrum Altingen

Weitere
Projekte

Johannesforum Wendlingen
Feuerwehrhaus und Rettungswache Schwaikheim
Feuerwehr Zipfelbach-Winnenden
Studierendenwohnanlage Bürgermeister-Ulrich-Straße Augsburg
Schülerhaus Stuttgart